top of page

Rafaela Koehler
Arquiteta e Urbanista em Graduação
Edifício Comercial - Porto Alegre

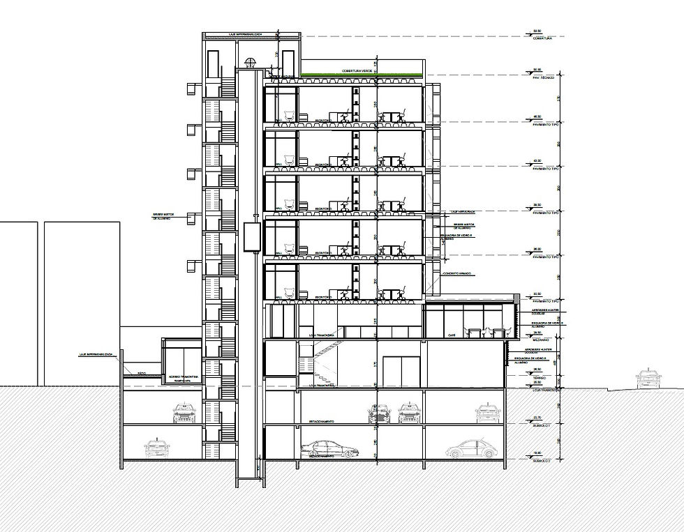
Localizado na Rua Dr. Timóteo, o edifício comercial possui acesso interno ao shopping Moinhos de Vento através de uma galeria de lojas e espaços de convivência. Com entrada independente no térreo, há uma loja da Tramontina com espaços de exposição de produtos e mezanino com café e acesso ao terraço. Elaborado no 7º semestre de graduação, o projeto possui salas empresariais com planta livre em seus pavimentos tipo, para diferentes configurações de layout. As fachadas são caracterizadas pela presença de brises mistos metálicos, independentes à estrutura principal.



Subsolos

Planta Baixa Térreo

Planta Baixa Mezanino

Planta Baixa Tipo

Fachada

Corte A-A

Corte B-B

Corte de Pele
bottom of page