top of page

Rafaela Koehler
Arquiteta e Urbanista em Graduação
Casas Geminadas - Villa Stein

O projeto, realizado no 4º semestre da graduação, consiste em três casas localizadas ao lado da famosa Villa Stein, projetada por Le Corbusier. O objetivo é relacionar as novas edificações com a arquitetura pré-existente e proporcionar ambientes de qualidade aos moradores. O acesso principal se dá a partir do grande largo em frente a Villa modernista e há um acesso secundário na fachada oposta, onde se encontram os espaços independentes de trabalho. A criação de mezaninos e pátios ao ar livre são outras características marcantes do projeto.



Planta Baixa Térreo

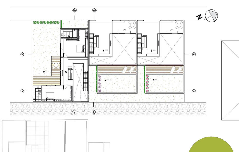
Planta Baixa 2º Pavimento

Planta Baixa 3º Pavimento

Cortes A-A e B-B

Cortes C-C e D-D

Entrada Casa 1 (2 Pavimentos)

Estar Íntimo Casa 1 (2 Pavimentos)

Escritório Casa 01 (2 Pavimentos)
bottom of page